
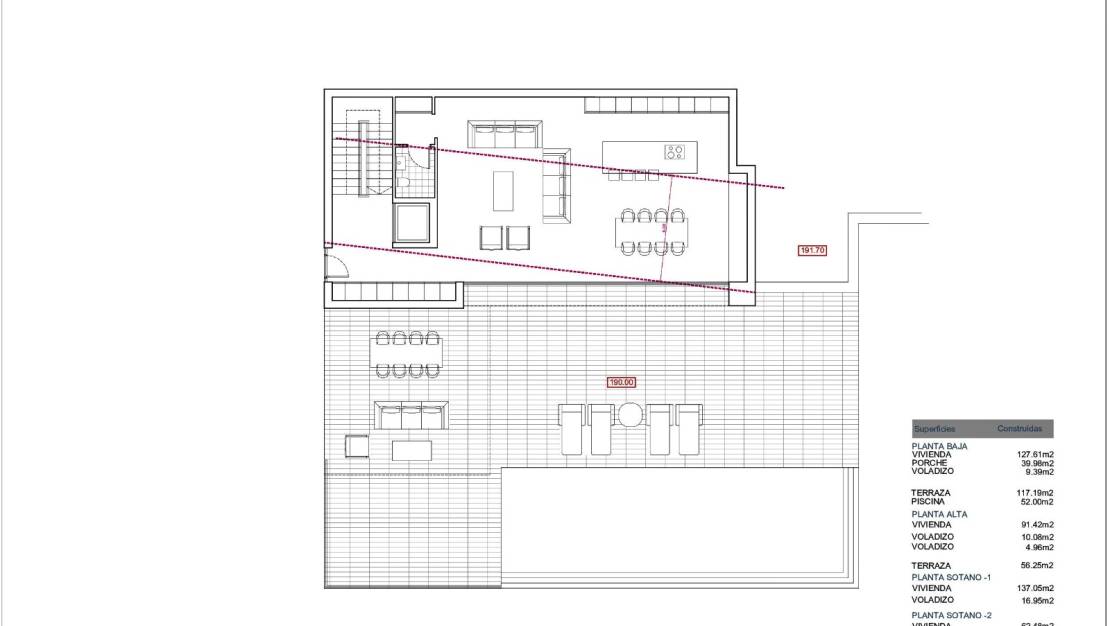
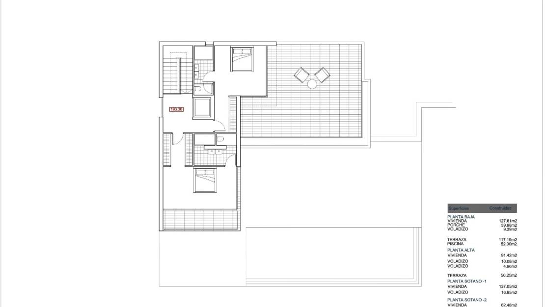
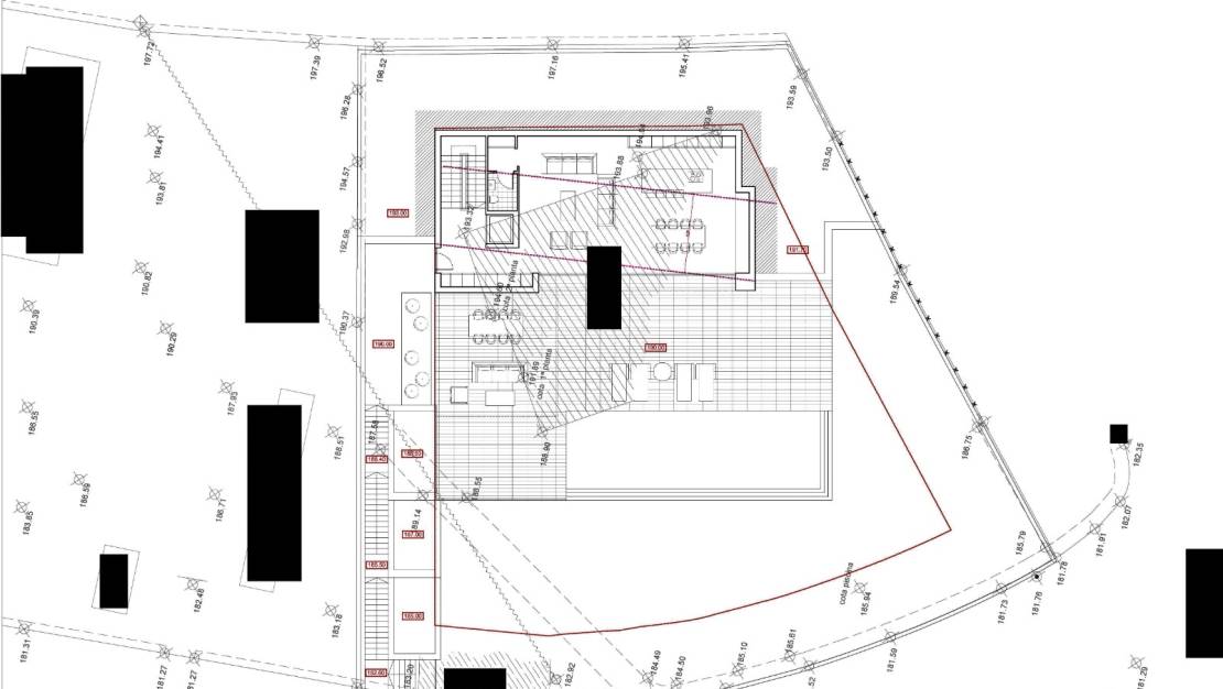
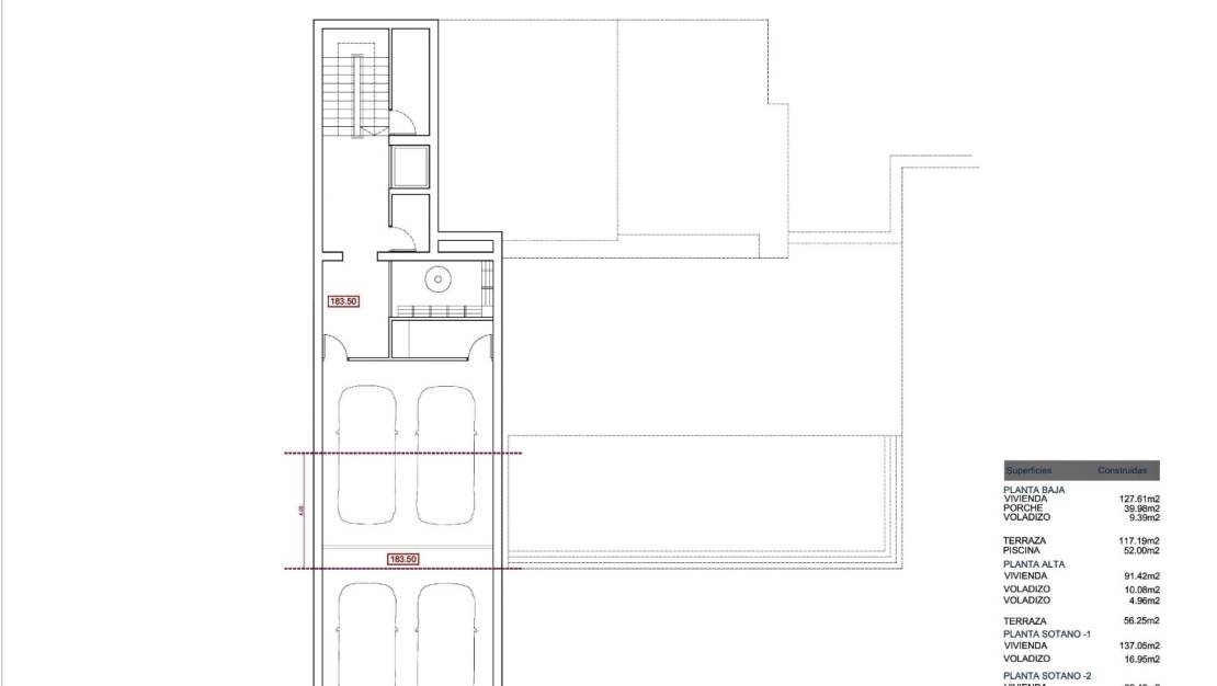
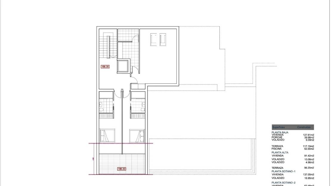
Project for a luxury villa to be built in the Montemar area of the Benissa coast with sea views and views to Peñón de Ifach. This villa, with exposed paneled concrete finishes, has 4 floors that are connected with an elevator and an internal staircase. The ground floor has a large open living-dining-kitchen area and a toilet. The kitchen is fully equipped and it has a cooking island. Sliding doors at ceiling height give direct access to a spacious terrace and a pool. The upper floor has two bedrooms with en-suite bathrooms and a terrace. The property has 2 basements. The basement number 1 has another two bedrooms, each with its own bathroom and a laundry room. The basement number 2 includes the gym, the wine cellar and a garage with capacity for 4 cars. The house has air conditioning (with ducts) and central heating with heat pump. There is an automatic entrance door with a separate pedestrian entrance and an intercom. On the same level as the main house is the swimming pool. It includes exterior carpentry with automatic shutters and mosquito nets in bedrooms, fitted wardrobes with modules and basic alarm installation. For further information please do not hesitate to contact us.
This info given here is subject to errors and do not form part of any contract. The offer can be changed or withdrawn without notice. Prices do not include purchase costs.