
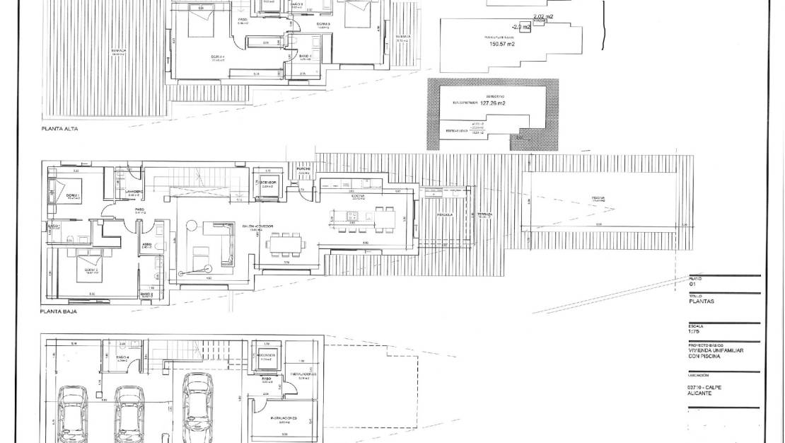
The villa is designed on three levels:
On the basement floor we find the garage for two vehicles, storage room, utility room, toilet, laundry room, gym and internal stairs leading to the ground floor.
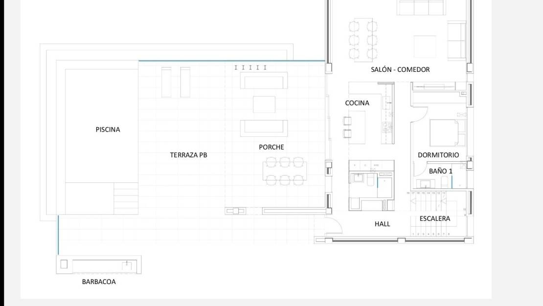
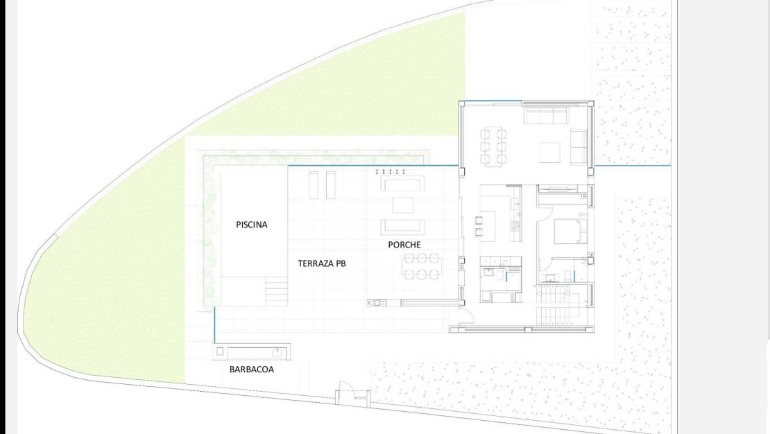
The ground floor is divided into an open living-dining room and a fully equipped modern open kitchen, connected to a fantastic outdoor terrace with a swimming pool, barbecue and outdoor bathroom. On this floor there is also a bedroom with an en-suite bathroom.
The upper floor is divided into three bedrooms, one of them en suite with a separate dressing room and a large terrace, and another bathroom shared by the other two bedrooms.
Quality report:
- Air conditioning : the air conditioning system will be the AEROTERMIA system for hot-cold air and underfloor heating or radiators throughout the home and domestic hot water with an accumulator.
- Security : the house will have security equipment consisting of a pre-installed security alarm, an anti-theft entrance door to the house and security glass, and a video intercom connected to the pedestrian entrance from the street.
- Interior carpentry : grey lacquered entrance door, burglar-proof with security lock and four anti-lever points. Smooth interior doors lacquered in matt white. Modular wardrobes with smooth doors lacquered in white and lined internally with imitation wood melamine, fully equipped with shelves, hanging rails, trays and drawers.
- Kitchen : designer kitchen furniture with matt white lacquered wall and base units and exotic marble worktop. SIEMENS or similar brand appliances included: induction hob, silent-operating smoke extractor, oven and microwave. Stainless steel sink integrated into the worktop and with flexible taps.
- Bathrooms : toilets will be white, MERIDIAN COMPAC model or similar. Extra-flat shower trays made of high-resistance white resins and tempered glass screens with anti-limescale treatment. The washbasins will be on suspended bathroom furniture with removable drawers. A mirror with integrated LED lighting and anti-fog film will be installed. Single-lever taps. A heated towel rail and towel racks and toilet roll holders will be installed.
- Exterior carpentry : it will be made of top national brand aluminum, lacquered in black and profiles with thermal break.
- Glazing : CLIMALIT safety glass 6+6/146/4+4
- Flooring : interior flooring of the house and pool terrace area in top-brand national grey PORCELAIN STONEWARE. In bathrooms, ivory-coloured PORCELAIN STONEWARE and in the hall and stairs area, white Macael MARBLE FLOORING.
- Exterior : 7.9x4 m swimming pool with built-in staircase, mosaic tile covering and two LED spotlights. Basic landscaping and irrigation with automatic programmer.
- Plot enclosure : with concrete walls. Covered pedestrian access and door with automatic opening from the house by means of an intercom. Motorized access door for cars. Terrace railings made of 6+6 mm tempered glass.
The villa is scheduled for completion in February 2024.
Price: 1 585 000 €
Locality: Spain Alicante Costa Blanca
Property Type: House / Villa / Chalet New construction Luxury Villa Modern designer villa
Property classification: On sale
Construction: 471 m2
Land: 800 m2
Bathrooms: 5
Bedrooms: 4
Request more information
Additional features: Pool Garage
This info given here is subject to errors and do not form part of any contract. The offer can be changed or withdrawn without notice. Prices do not include purchase costs.