Perceel te koop in Benissa

Ref.: BO-78109
936m2
600.000€ Inform prijsdaling

Kenmerken

Slaapkamers: 0
Badkamers: 0
Plot: 936m2
Energy Rating: In proces
Energy Rating
Energy Rating:
In proces

Beschrijving

Droomt u van een luxe villa aan de Costa Blanca? Ontdek dit uitzonderlijke bouwperceel van 936 m², gelegen in geliefde groene wijk San Jaime in Benissa Costa, die u de unieke kans biedt om deze droom werkelijkheid te maken.

Beschrijving van het grondstuk

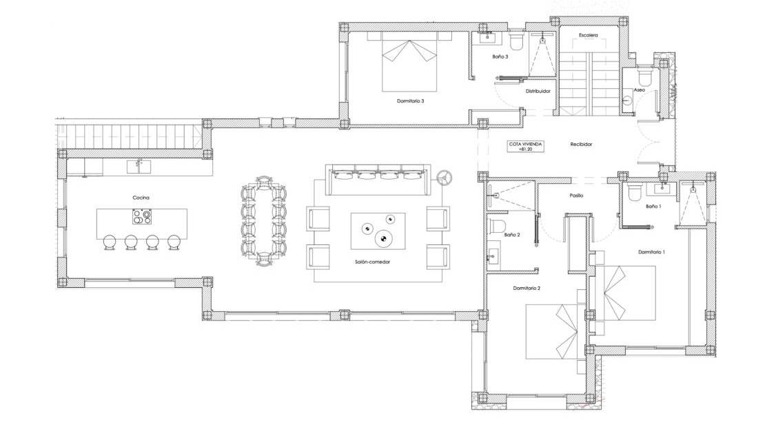
Dit unieke perceel wordt bouwrijp opgeleverd, inclusief een stijlvol bouwproject voor een ruime Ibiza-stijl villa met vier ruime slaapkamers en vier badkamers. Bovendien is het ontwerp nog volledig aanpasbaar aan uw persoonlijke wensen — zo heeft u de mogelijkheid uw ideale woning onder de Spaanse zon te creëren. 

Vanaf de begane grond geniet u van adembenemend uitzicht over de Middellandse Zee, de groene vallei én het iconische silhouet van de Peñón de Ifach. Dankzij de dubbele toegang aan zowel de voor- als achterzijde is het perceel uitstekend bereikbaar en biedt het blijvend vrij uitzicht.

San Jaime staat bekend om zijn charme: dichtbij idyllische baaien zoals Cala Advocat en Cala Baladrar, gezellige chiringuitos en het nabijgelegen Golf Ifach, waar u golf speelt met zicht op de beroemde rots van Calpe.

Op het moment van aankoop wordt het perceel volledig schoon opgeleverd. Met andere woorden, de woning wordt volledig gesloopt. Let op, de constructie van het project is niet inclusief in de prijs.

Kenmerken

 Bouwrijp perceel van 936 m²Inclusief flexibel bouwproject in Ibiza-stijl4 slaapkamers, 4 badkamersSpectaculair zee - en valleizichtGelegen in de gewilde wijk San JaimeDichtbij standjes, golf en voorzieningen

Realiseer uw droomvilla aan de in Benissa aan de Costa Blanca! Neem vandaag nog contact met ons op voor meer informatie of een bezichtiging.

Economie

Deze informatie is hier onderhevig aan fouten en maakt geen deel uit van een contract. De aanbieding kan zonder kennisgeving worden gewijzigd of ingetrokken. Prijzen zijn exclusief aankoopkosten.

Bereken hypotheken

Wisselkantoor

  • Pounds: 518.460 GBP
  • Russische roebel: 518.460 RUB
  • Zwitserse frank: 549.360 CHF
  • Chinese yuan: 4.799.340 CNY
  • Dollar: 705.660 USD
  • Zweedse kroon: 6.505.200 SEK
  • De Noorse kroon: 6.492.900 NOK

Vraag voor informatie

Responsable del tratamiento: Scottish Spanish Homes SL, Finalidad del tratamiento: Gestión y control de los servicios ofrecidos a través de la página Web de Servicios inmobiliarios, Envío de información a traves de newsletter y otros, Legitimación: Por consentimiento, Destinatarios: No se cederan los datos, salvo para elaborar contabilidad, Derechos de las personas interesadas: Acceder, rectificar y suprimir los datos, solicitar la portabilidad de los mismos, oponerse altratamiento y solicitar la limitación de éste, Procedencia de los datos: El Propio interesado, Información Adicional: Puede consultarse la información adicional y detallada sobre protección de datos Aquí.

© 2026 · Advanced Property Group · Colofon · Privacy · Cookies · Web plan · Ontwerp: Mediaelx

WhatsApp