
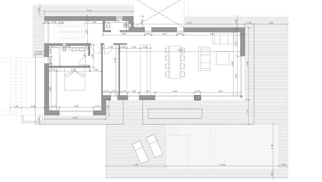
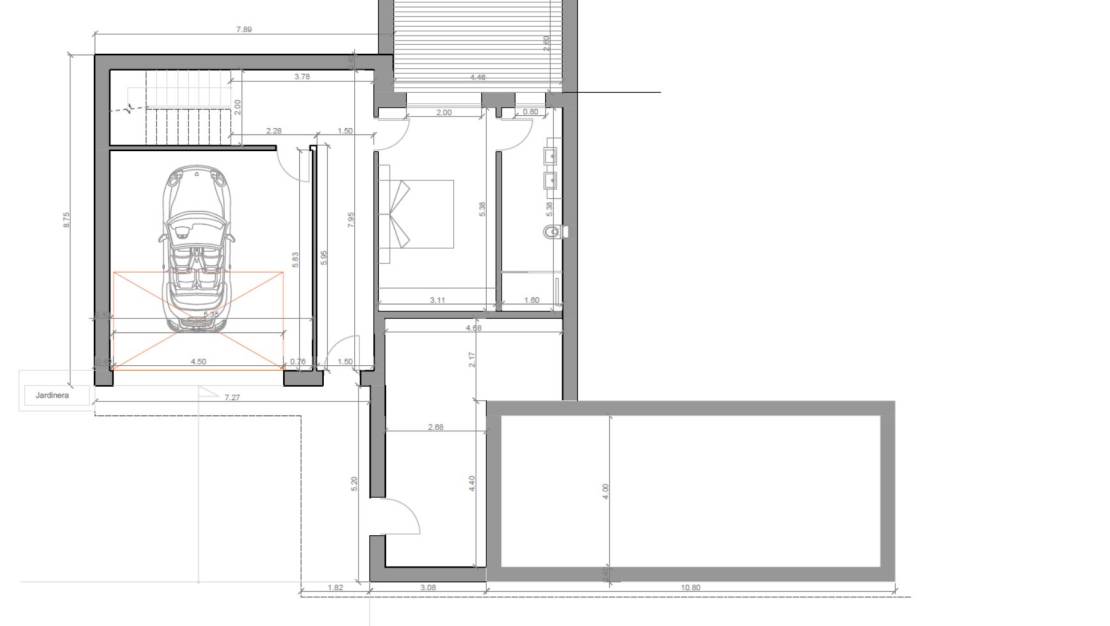
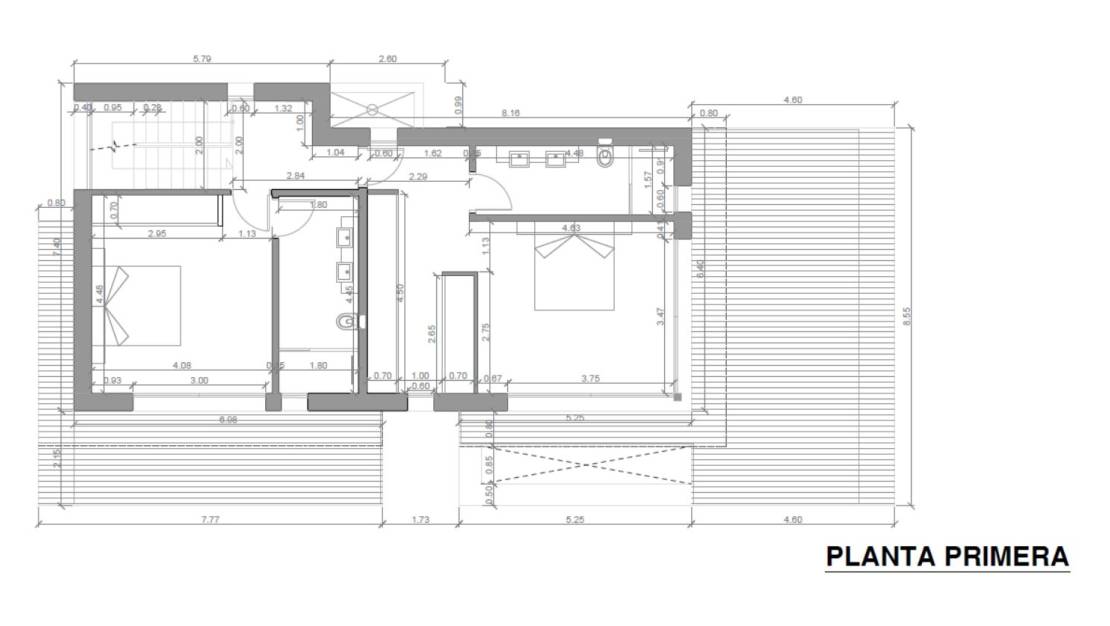
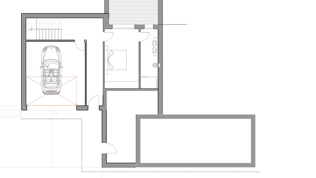
Ostatni wolny projekt z tą mega panoramiczną łodzią ViewSUP Empedrola C 11 Działka + Projekt - Projekt Budowlany - Z Pozwoleniem na Budowę Szczegóły: 1000 m2; 3 sypialnie; 3 łazienki; duży taras; basen (4. sypialnia dostępna na życzenie) Idealna, słoneczna lokalizacja z widokiem na panoramę i góry, Doskonała lokalizacja Cena sprzedaży: 997 000 euro
Deze informatie is hier onderhevig aan fouten en maakt geen deel uit van een contract. De aanbieding kan zonder kennisgeving worden gewijzigd of ingetrokken. Prijzen zijn exclusief aankoopkosten.