
Ontdek de charme van deze spectaculaire luxe villa, gelegen op een perceel van 912 m², strategisch dicht bij de prachtige stranden en het centrum van Moraira. Deze woning biedt een ongeëvenaarde woonervaring met modern design, comfort en een adembenemend uitzicht op zee.
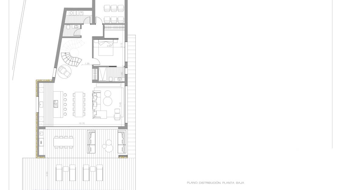
Indeling van de Villa
De villa is verdeeld over twee verdiepingen, zorgvuldig ontworpen voor optimaal comfort:
Bovenverdieping:
Hier bevindt zich de hoofdingang van de woning. Buiten vindt u een parkeerplaats en een individuele garage. Binnen zijn er drie ruime slaapkamers, elk met een eigen en-suite badkamer. Twee slaapkamers beschikken bovendien over een privébalkon met prachtig uitzicht.
Benedenverdieping:
Via een stijlvolle wenteltrap bereikt u de grote, lichte woonruimte met open keuken en kookeiland. Deze verdieping beschikt ook over een gastentoilet, een bioscoopruimte, een wasruimte en een extra slaapkamer met en-suite badkamer.
Buiten is er een indrukwekkend infinity-zwembad van 11,5 x 4 m, omgeven door een ruim terras en een BBQ/chill-out zone met uitzicht op zee en Moraira.
Belangrijke Extra's
De villa is voorzien van hoogwaardige materialen en luxe voorzieningen, waaronder:
Technal kozijnen met veiligheidsglas
Volledig uitgeruste keuken met Siemens apparatuur
Badkamers en kranen van het merk Roca
LED-verlichting
Aerothermisch systeem voor warm water en vloerverwarming
Geïntegreerde airconditioning (warm/koud) in het hele huis
Voorinstallatie voor zonnepanelen
Zonnepaneel voor sanitair warm water
Ingebouwde kasten
Elektrische rolluiken
Alarmsysteem binnen, voorbereiding voor buitenalarm en beveiligingscamera’s
En nog veel meer!
Neem contact met ons op voor meer informatie over deze exclusieve villa, gebouwd door GH Costa Blanca.
Zoek je luxe, comfort en modern wonen? Dan is dit jouw droomhuis!
Deze informatie is hier onderhevig aan fouten en maakt geen deel uit van een contract. De aanbieding kan zonder kennisgeving worden gewijzigd of ingetrokken. Prijzen zijn exclusief aankoopkosten.