
Откройте для себя очарование этой красивой роскошной виллы, расположенной на участке площадью 1046 м² с двумя пешеходными и автомобильными доступами, в том числе через общую зону урбанизации. Стратегически расположенный в нескольких минутах ходьбы от прекрасных пляжей и центра Морайры, этот отель предлагает исключительные впечатления от жизни.
ПЛАНИРОВКА ВИЛЛЫ:
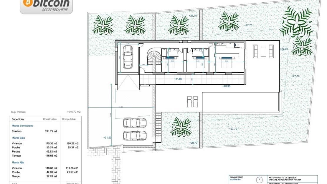
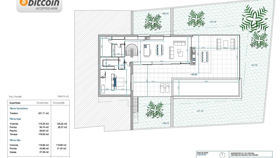
Эта вилла, расположенная на 3 этажах, выделяется своим современным дизайном и продуманной планировкой:
ПЕРВЫЙ ЭТАЖ: Просторная светлая гостиная рядом с открытой кухней с островом, гостевой туалет и спальня с ванной комнатой. Снаружи потрясающий пейзажный бассейн, окруженный просторной террасой и зоной барбекю, создает идеальную атмосферу для развлечений.
ВЕРХНИЙ ЭТАЖ: 3 просторные спальни, каждая с собственной ванной комнатой и отдельным балконом, чтобы насладиться потрясающим видом. На внешней стороне этого этажа находится гараж, обеспечивающий комфорт и пространство для вашего автомобиля.
ЦОКОЛЬНЫЙ ЭТАЖ: В нем находится просторная кладовая площадью 221 м², добавляющая функциональность и место для хранения.
БОНУСНЫЕ УСЛУГИ:
Вилла оснащена лучшими качествами и роскошными удобствами, в том числе:
Технические столярные изделия с безопасным стеклом.
Полностью оборудованная кухня с техникой Siemens.
Ванные комнаты и смесители от престижного бренда Roca.
Светодиодное освещение.
Аэротермальная система для горячего водоснабжения и полов с подогревом.
Канальный кондиционер (горячий и холодный) по всему дому.
Солнечные батареи.
Предварительная установка солнечных панелей.
Солнечная панель для санитарной воды.
Электрические жалюзи.
Внутренняя сигнализация, предварительная установка наружной сигнализации и камер видеонаблюдения.
ЭКСТЕРЬЕР И ЭНЕРГЕТИЧЕСКАЯ КЛАССИФИКАЦИЯ:
Прямоугольный бассейн с переливной системой.
Зона барбекю.
Прачечная.
Идеально ухоженный сад.
Автоматические входные двери.
Энергетическая классификация А.
Южная сторона.
Этот проект является частью небольшого комплекса, состоящего из шести современных домов, каждый из которых имеет собственную парковку. Расположенный на участке 4, этот проект предлагает уникальную возможность для тех, кто ищет роскошную резиденцию в эксклюзивной и спокойной обстановке.
Эта информация может подвеграться изменениям и не является частью будущего контракта. Предложение может быть изменено или отозвано без предварительного уведомления. Расходы на покупку не включены в цену обьекта