
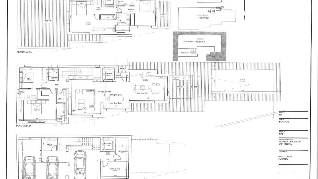
Вилла спроектирована на трех уровнях:
На цокольном этаже расположены гараж на две машины, кладовая, подсобное помещение, туалет, прачечная, тренажерный зал и внутренняя лестница, ведущая на первый этаж.
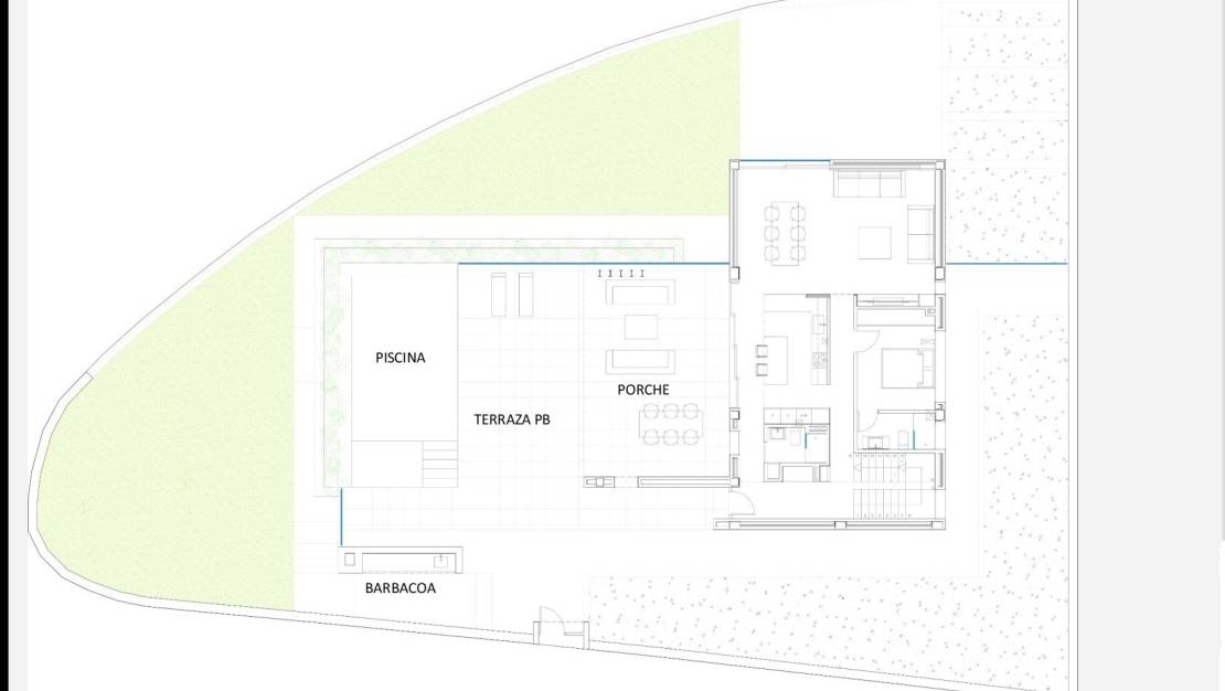
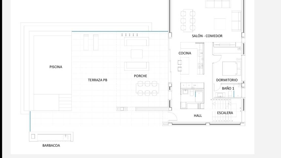
Первый этаж разделен на открытую гостиную-столовую и полностью оборудованную современную кухню открытой планировки, соединенную с великолепной открытой террасой с бассейном, барбекю и ванной комнатой на открытом воздухе. На этом же этаже находится спальня с ванной комнатой.
Верхний этаж разделен на три спальни, одна из которых с собственной ванной комнатой, отдельной гардеробной и большой террасой, а также еще одна ванная комната, общая для двух других спален.
Отчет о качестве:
- Кондиционирование воздуха: система кондиционирования воздуха AEROTERMIA будет включать систему горячего и холодного воздуха и подогрев пола или радиаторы по всему дому, а также горячее водоснабжение с аккумулятором.
- Безопасность: дом будет оборудован средствами безопасности, включающими предустановленную охранную сигнализацию, противоугонную входную дверь с защитным стеклом и видеодомофон, подключенный к пешеходному входу с улицы.
- Внутренняя отделка: входная дверь, покрытая серым лаком, с противовзломным замком и четырьмя точками защиты от взлома. Гладкие межкомнатные двери, покрытые матовым белым лаком. Модульные шкафы с гладкими дверями, покрытыми белым лаком и отделанными изнутри меламином под дерево, полностью оборудованные полками, вешалками, подносами и ящиками.
- Кухня: дизайнерская кухонная мебель с матовыми белыми лакированными настенными и напольными шкафами и столешницей из экзотического мрамора. Включена бытовая техника SIEMENS или аналогичной марки: индукционная варочная панель, бесшумная вытяжка, духовка и микроволновая печь. Мойка из нержавеющей стали, встроенная в столешницу, с гибкими смесителями.
- Ванные комнаты: унитазы будут белого цвета, модель MERIDIAN COMPAC или аналогичная. Сверхплоские душевые поддоны из высокопрочных белых смол и закаленного стекла с антиизвестковой обработкой. Раковины будут установлены на подвесной мебели для ванной комнаты со съемными ящиками. Будет установлено зеркало со встроенной светодиодной подсветкой и противотуманной пленкой. Однорычажные смесители. Будет установлен полотенцесушитель с подогревом, держатели для полотенец и туалетной бумаги.
- Внешняя отделка: будет выполнена из высококачественного алюминия отечественного производства, покрытого черным лаком, и профилей с терморазрывом.
- Остекление: безопасное стекло CLIMALIT 6+6/146/4+4
- Напольное покрытие: внутреннее напольное покрытие дома и террасы у бассейна – высококачественный серый керамогранит отечественного производства. В ванных комнатах – керамогранит цвета слоновой кости, а в прихожей и на лестнице – белый мрамор Macael.
- Внешняя отделка: бассейн 7,9х4 м со встроенной лестницей, мозаичным покрытием и двумя светодиодными прожекторами. Базовое благоустройство территории и система полива с автоматическим программатором.
- Ограждение участка: бетонными стенами. Крытый пешеходный доступ и дверь с автоматическим открыванием из дома через домофон. Автоматизированные ворота для автомобилей. Перила террасы из закаленного стекла толщиной 6+6 мм.
Завершение строительства виллы запланировано на февраль 2024 года.
Цена: 1 585 000 €
Местоположение: Испания, Аликанте, Коста-Бланка
Тип недвижимости: Дом / Вилла / Шале, новостройка, роскошная вилла, современная дизайнерская вилла
Классификация недвижимости: В продаже
Площадь: 471 м2
Площадь участка: 800 м2
Ванные комнаты: 5
Спальни: 4
Запросить дополнительную информацию
Дополнительные характеристики: Бассейн, Гараж
Эта информация может подвеграться изменениям и не является частью будущего контракта. Предложение может быть изменено или отозвано без предварительного уведомления. Расходы на покупку не включены в цену обьекта