
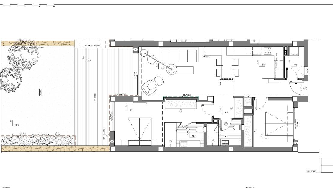
Apartamento moderno con jardín privado en venta en Montecala Gardens, Cumbre del SolDescubre este apartamento moderno con jardín privado en venta en Montecala Gardens, una vivienda pensada para quienes buscan comodidad, diseño actual y una ubicación privilegiada en la urbanización Cumbre del Sol, entre Jávea y Moraira, en el municipio de Benitachell, en plena Costa Blanca Norte. Situado dentro de una de las promociones residenciales más valoradas de la zona, este apartamento ofrece un estilo de vida tranquilo, práctico y conectado con la naturaleza, sin renunciar a la cercanía de servicios, playas, calas y restaurantes. Vivienda moderna con terraza cubierta y jardín privadoLa propiedad cuenta con una superficie total construida de 143 m², distribuida de forma cómoda y funcional para disfrutar tanto del interior como del exterior durante todo el año. La vivienda dispone de 91 m² interiores, una agradable terraza cubierta de 23 m², 29 m² de zonas comunes y un exclusivo jardín privado de casi 36 m², perfecto para relajarte al aire libre, crear una zona chill out, disfrutar de comidas en familia o simplemente desconectar en un entorno mediterráneo. Distribución pensada para el confort diarioEl interior del apartamento ha sido diseñado para aprovechar al máximo la luz natural y ofrecer espacios prácticos, actuales y acogedores. Cada estancia está orientada a facilitar el día a día, creando una vivienda cómoda tanto como residencia habitual como para disfrutarla en vacaciones. La conexión entre el interior, la terraza y el jardín privado aporta una sensación de amplitud muy agradable, ideal para quienes valoran la vida exterior y buscan una propiedad fácil de mantener en una ubicación exclusiva. Un apartamento ideal para vivir o invertir en Cumbre del SolEste apartamento en Montecala Gardens es una excelente oportunidad para quienes desean adquirir una propiedad moderna en una zona consolidada de la Costa Blanca, con gran atractivo tanto para uso propio como para inversión. Su ubicación dentro de Cumbre del Sol permite disfrutar de un entorno seguro, cuidado y rodeado de naturaleza, con acceso a servicios esenciales, zonas deportivas, colegios internacionales, supermercados y algunas de las calas más bonitas de la zona. Prestaciones y detalles destacadosEsta vivienda destaca por una combinación muy equilibrada de diseño, comodidad y entorno: Apartamento de estilo moderno en una promoción residencial exclusiva.143 m² construidos en total.91 m² de vivienda interior.Terraza cubierta de 23 m², perfecta para disfrutar del clima mediterráneo.Jardín privado de casi 36 m².Ubicación en Montecala Gardens, dentro de Cumbre del Sol.Entorno tranquilo entre Jávea y Moraira.Cercanía a playas, calas, supermercados, restaurantes y servicios.Vivienda ideal como residencia habitual, segunda residencia o inversión inmobiliaria en la Costa Blanca Norte.Vive el Mediterráneo desde tu propio jardínUno de los grandes atractivos de esta propiedad es su espacio exterior privado. El jardín privado añade un valor especial a la vivienda, ya que permite disfrutar del aire libre con mayor intimidad y libertad. Podrás desayunar en la terraza, leer al sol, organizar una comida tranquila o simplemente disfrutar del clima suave de la Costa Blanca durante gran parte del año. Es una vivienda pensada para vivir con calma, comodidad y conexión con el entorno. Ubicación privilegiada en Montecala GardensMontecala Gardens se encuentra en la promoción Pueblo Montecala, dentro de la zona residencial Palmeras de la urbanización Cumbre del Sol, en Benitachell, Alicante. Esta zona es muy apreciada por su tranquilidad, su entorno natural y su excelente conexión con algunos de los puntos más atractivos de la Costa Blanca Norte. Desde aquí podrás acceder fácilmente a calas, zonas verdes, servicios diarios y localidades tan conocidas como Moraira, Jávea y Benitachell. Cerca de calas, servicios y ocioLa ubicación de la vivienda te permite tener todo lo necesario a poca distancia: A unos 700 metros, acceso a la pintoresca cala Llebeig.A 2-3 km, la playa del Moraig, la cala de los Tiestos y el Centro Comercial Adelfas, con supermercado Pepe La Sal, farmacia, cafetería, restaurante, peluquería y servicios de mantenimiento y alquileres.A 4-5 km, el supermercado Mercadona, la Lady Elizabeth School, hípica y centro deportivo con pistas de pádel y tenis.A 6-7 km, el supermercado Mas y Mas, el centro urbano de Moraira y la playa de El Portet.A unos 13 km, la playa del Arenal de Jávea, con paseo marítimo, restaurantes y ambiente durante todo el año.Una oportunidad para disfrutar de la Costa Blanca NorteSi estás buscando una vivienda moderna, cómoda y bien ubicada, este apartamento con jardín privado en Montecala Gardens puede ser una excelente elección. Es una propiedad que combina privacidad, espacios exteriores, diseño actual y una ubicación muy atractiva dentro de Cumbre del Sol, una de las urbanizaciones más reconocidas de la Costa Blanca Norte. Contacta con nosotros y ven a conocerloSi esta vivienda encaja con lo que estás buscando, estaremos encantados de ayudarte. Podemos darte más información, resolver tus dudas y organizar una visita para que descubras personalmente todo lo que este apartamento puede ofrecerte. Contacta con nosotros hoy mismo y da el primer paso para disfrutar de tu nuevo hogar en Montecala Gardens, Cumbre del Sol. Resumen de Montecala Gardens y Pueblo MontecalaMontecala Gardens es un complejo de apartamentos modernos situado en Pueblo Montecala, dentro de la zona residencial Palmeras de la urbanización Cumbre del Sol, en Benitachell. Se trata de un entorno residencial tranquilo, luminoso y muy bien conectado, ideal para quienes desean vivir rodeados de naturaleza sin alejarse de los servicios principales. La mayoría de los apartamentos de Pueblo Montecala cuentan con orientación sur o suroeste, lo que favorece una excelente entrada de luz natural. El complejo limita con la zona de protección especial del Portet de Moraira y se encuentra muy cerca de la cala Llebeig, un entorno natural de gran belleza que aporta un valor especial a la ubicación. Entre sus zonas comunes destacan la piscina tipo laguna, una segunda piscina más pequeña, amplias terrazas, soláriums, jardines y club social. Todo está pensado para disfrutar del clima mediterráneo, relajarse y compartir momentos en un ambiente cuidado y agradable. Vivir en Montecala Gardens, Cumbre del Sol, significa disfrutar de un estilo de vida mediterráneo, con calas cercanas, servicios a pocos minutos y una ubicación estratégica entre Moraira, Jávea y Benitachell.
Esta información que se proporciona aquí está sujeta a errores y no forma parte de ningún contrato. La oferta se puede cambiar o retirar sin previo aviso. Los precios no incluyen los costes de compra