
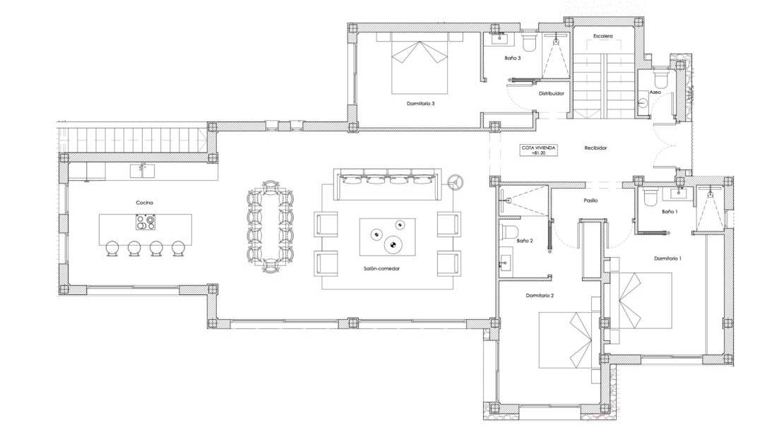
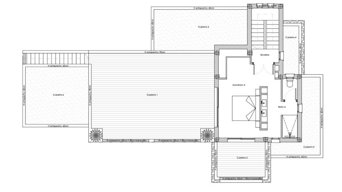
Marzysz o luksusowej willi na Costa Blanca? Odkryj tę wyjątkową działkę budowlaną o powierzchni 936 m², położoną w ukochanej zielonej okolicy San Jaime w Benissa Costa, która oferuje Ci wyjątkową okazję, aby spełnić to marzenie. Opis działki Ta wyjątkowa działka zostanie dostarczona gotowa do zabudowy, w tym stylowy projekt budowy przestronnej willi w stylu Ibizy z czterema przestronnymi sypialniami i czterema łazienkami. Co więcej, projekt jest nadal w pełni dostosowany do Twoich osobistych wymagań - dając Ci możliwość stworzenia idealnego domu pod hiszpańskim słońcem. Z parteru będziesz cieszyć się zapierającymi dech w piersiach widokami na Morze Śródziemne, zieloną dolinę i kultową sylwetkę Peñón de Ifach. Dzięki podwójnemu dostępowi zarówno z przodu, jak i z tyłu działka ma doskonały dostęp i oferuje stały, niezakłócony widok. San Jaime jest znane ze swojego uroku: blisko idyllicznych zatoczek, takich jak Cala Advocat i Cala Baladrar, przytulnych chiringuitos i pobliskiego Golf Ifach, gdzie możesz grać w golfa z widokiem na słynną skałę Calpe. W momencie zakupu działka zostanie przekazana całkowicie czysta. Innymi słowy, nieruchomość zostanie całkowicie zburzona. Należy pamiętać, że budowa projektu nie jest wliczona w cenę. Cechy Działka budowlana o powierzchni 936 m² Obejmuje elastyczny projekt budowlany w stylu Ibizy Projekt z 4 sypialniami, 4 łazienkami Spektakularne widoki na morze i dolinę Znajduje się w pożądanej okolicy San Jaime Blisko plaż, pól golfowych i udogodnień Zrealizuj swoją wymarzoną willę w Benissa na Costa Blanca! Skontaktuj się z nami już dziś, aby uzyskać więcej informacji lub obejrzeć.
Informacja podana tutaj jest orientacyjna i nie stanowi części żadnej umowy. Oferta może zostać zmieniona lub wycofana bez uprzedniego powiadomienia. Ceny nie obejmują kosztów zakupu