
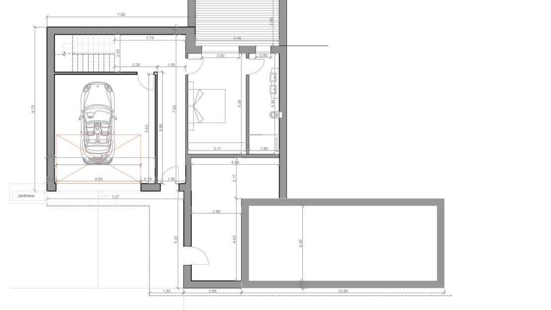
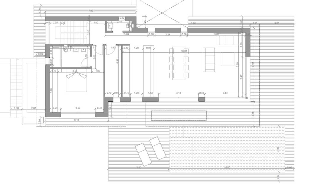
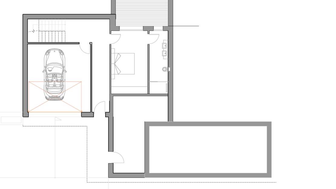
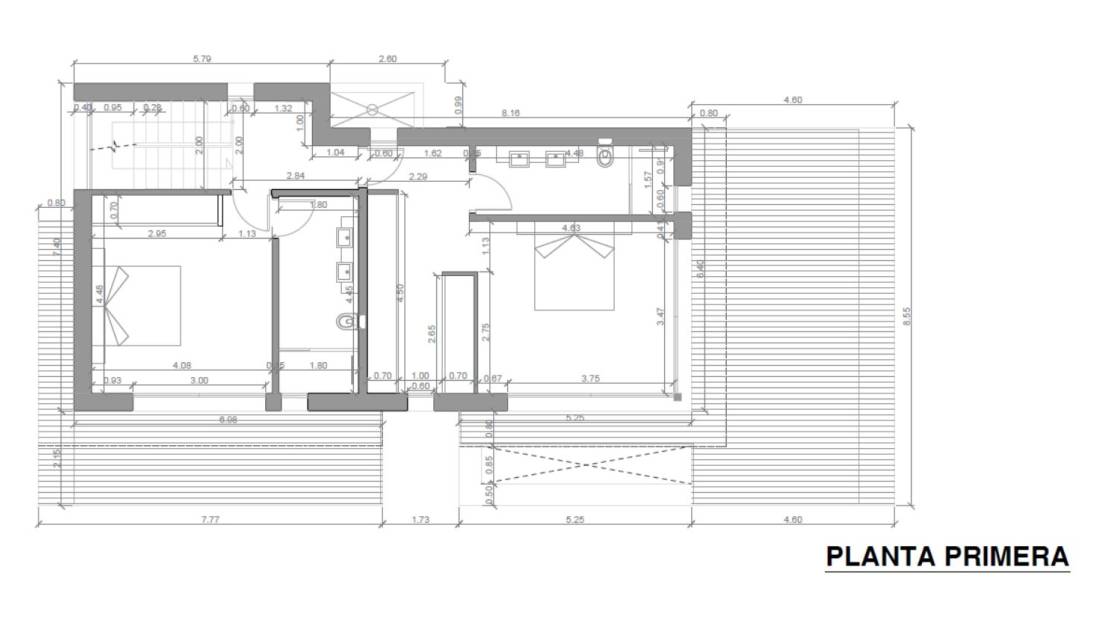
Ostatni wolny projekt z tą mega panoramiczną łodzią ViewSUP Empedrola C 11 Działka + Projekt - Projekt Budowlany - Z Pozwoleniem na Budowę Szczegóły: 1000 m2; 3 sypialnie; 3 łazienki; duży taras; basen (4. sypialnia dostępna na życzenie) Idealna, słoneczna lokalizacja z widokiem na panoramę i góry, Doskonała lokalizacja Cena sprzedaży: 997 000 euro
Informacja podana tutaj jest orientacyjna i nie stanowi części żadnej umowy. Oferta może zostać zmieniona lub wycofana bez uprzedniego powiadomienia. Ceny nie obejmują kosztów zakupu