
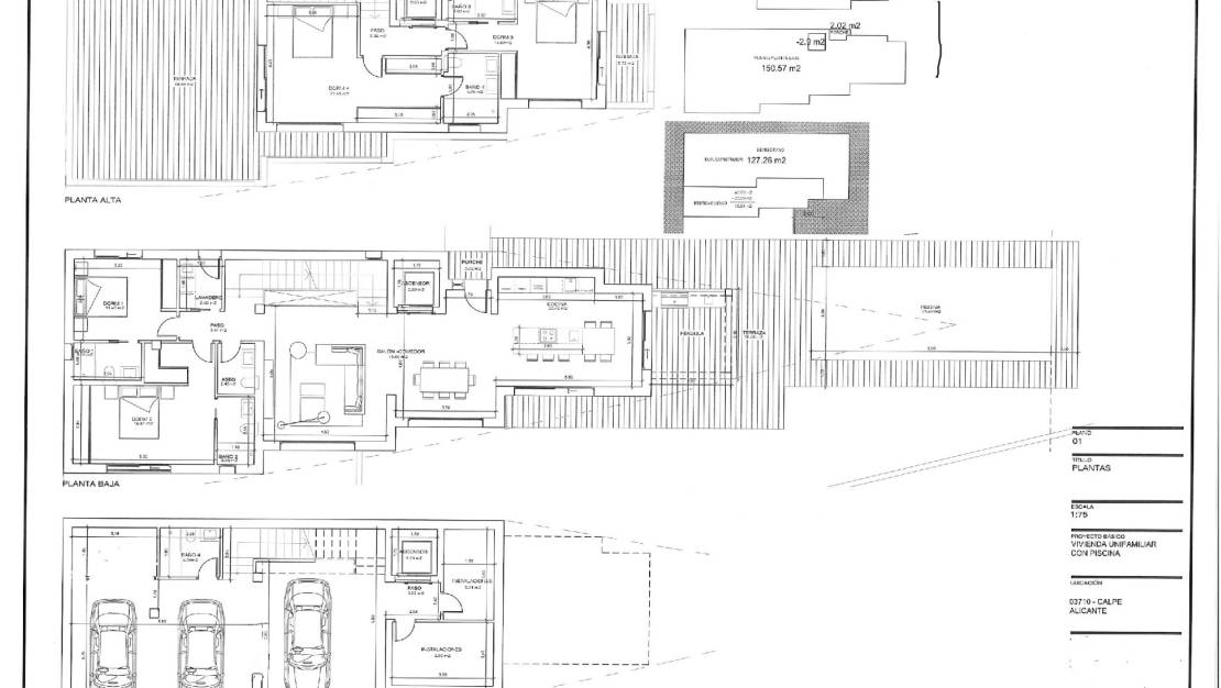
Willa została zaprojektowana na trzech poziomach:
Na poziomie piwnicy znajduje się garaż na dwa samochody, schowek, pomieszczenie gospodarcze, toaleta, pralnia, siłownia oraz wewnętrzne schody prowadzące na parter.
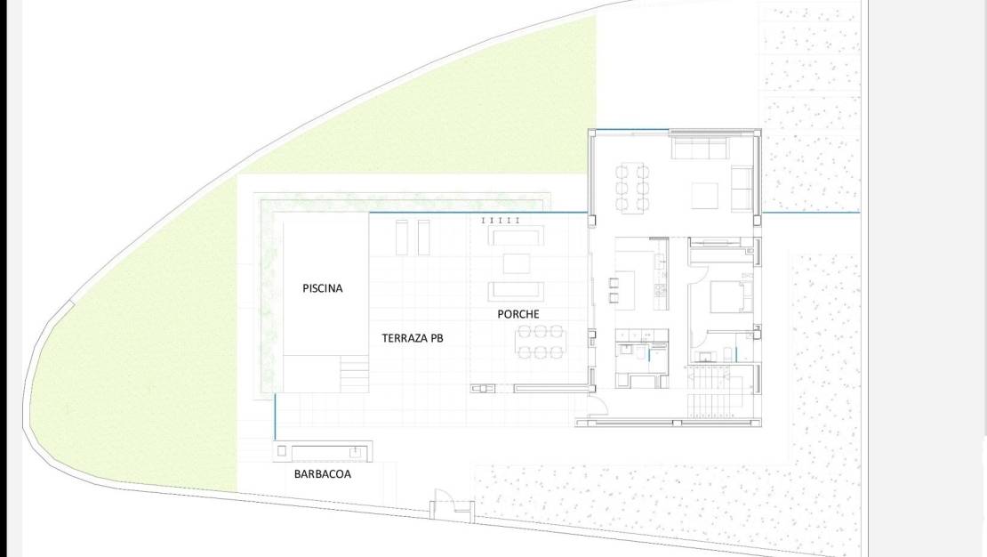
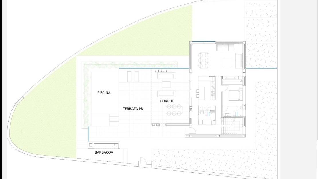
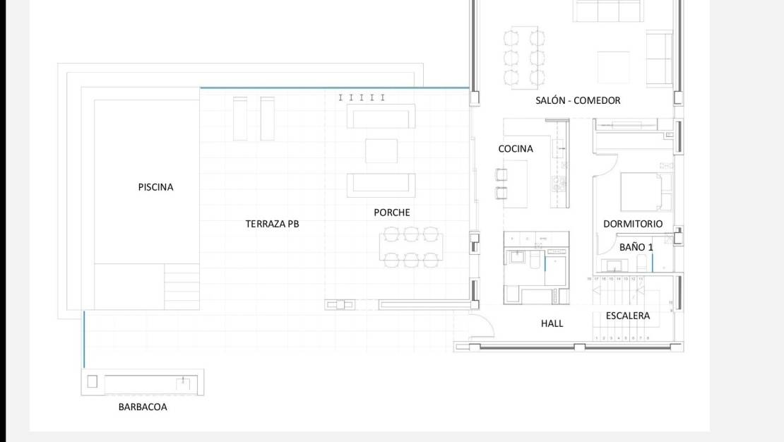
Parter podzielony jest na otwarty salon z jadalnią oraz w pełni wyposażoną, nowoczesną kuchnię, połączoną z fantastycznym tarasem zewnętrznym z basenem, grillem i łazienką na świeżym powietrzu. Na tym samym poziomie znajduje się również sypialnia z łazienką en-suite.
Na piętrze znajdują się trzy sypialnie, jedna z łazienką en-suite z oddzielną garderobą i dużym tarasem, oraz druga łazienka wspólna dla dwóch pozostałych sypialni.
Raport jakościowy:
- Klimatyzacja: system klimatyzacji będzie systemem AEROTERMIA, zapewniającym ciepłe i zimne powietrze oraz ogrzewanie podłogowe lub grzejnikowe w całym domu i ciepłą wodę użytkową z zasobnikiem.
- Bezpieczeństwo: dom będzie wyposażony w system bezpieczeństwa, składający się z preinstalowanego alarmu, antywłamaniowych drzwi wejściowych do domu i szyb antywłamaniowych oraz wideodomofonu podłączonego do wejścia dla pieszych od strony ulicy.
- Stolarka wewnętrzna: szare lakierowane drzwi wejściowe, antywłamaniowe z zamkiem zabezpieczającym i czterema punktami antywyważeniowymi. Gładkie drzwi wewnętrzne lakierowane na matową biel. Szafy modułowe z gładkimi drzwiami lakierowanymi na biało, wyłożone wewnątrz melaminą imitującą drewno, w pełni wyposażone w półki, drążki na wieszaki, tace i szuflady.
- Kuchnia: designerskie meble kuchenne z szafkami wiszącymi i dolnymi lakierowanymi na matową biel oraz blatem z egzotycznego marmuru. W zestawie sprzęt AGD marki SIEMENS lub podobnej: płyta indukcyjna, cichobieżny okap, piekarnik i kuchenka mikrofalowa. Zlew ze stali nierdzewnej zintegrowany z blatem i elastycznymi bateriami.
- Łazienki: toalety w kolorze białym, model MERIDIAN COMPAC lub podobny. Brodziki bardzo płaskie wykonane z wysokowytrzymałych białych żywic i hartowanego szkła z powłoką antykamieniową. Umywalki będą zamontowane na podwieszanych meblach łazienkowych z wyjmowanymi szufladami. Zamontowane zostanie lustro z wbudowanym oświetleniem LED i powłoką antyzaparowującą. Baterie jednouchwytowe. Zamontowany zostanie podgrzewany wieszak na ręczniki, wieszaki na ręczniki i uchwyty na papier toaletowy.
- Stolarka zewnętrzna: wykonana z aluminium najwyższej jakości, lakierowanego na czarno, z profili z przekładką termiczną.
- Szklenie: szkło bezpieczne CLIMALIT 6+6/146/4+4
- Podłoga: podłoga wewnątrz domu i tarasu przy basenie z wysokiej jakości szarego gresu porcelanowego. W łazienkach gres porcelanowy w kolorze kości słoniowej, a w holu i na schodach biały marmur Macael.
- Zewnętrzna część: basen o wymiarach 7,9 x 4 m z wbudowanymi schodami, mozaiką i dwoma reflektorkami LED. Podstawowe zagospodarowanie terenu i system nawadniania z automatycznym programatorem.
- Ogrodzenie działki: betonowe ściany. Zadaszony dostęp dla pieszych i brama wjazdowa otwierana automatycznie z domu za pomocą domofonu. Brama wjazdowa z napędem. Balustrady tarasowe wykonane ze szkła hartowanego o grubości 6+6 mm.
Zakończenie budowy willi planowane jest na luty 2024 r.
Cena: 1 585 000 €
Lokalizacja: Hiszpania, Alicante, Costa Blanca
Typ nieruchomości: Dom / Willa / Domek Nowa inwestycja Luksusowa willa Nowoczesna designerska willa
Kategoria nieruchomości: Na sprzedaż
Powierzchnia: 471 m2
Działka: 800 m2
Łazienki: 5
Sypialnie: 4
Zapytaj o więcej informacji
Dodatkowe udogodnienia: Basen Garaż
Informacja podana tutaj jest orientacyjna i nie stanowi części żadnej umowy. Oferta może zostać zmieniona lub wycofana bez uprzedniego powiadomienia. Ceny nie obejmują kosztów zakupu